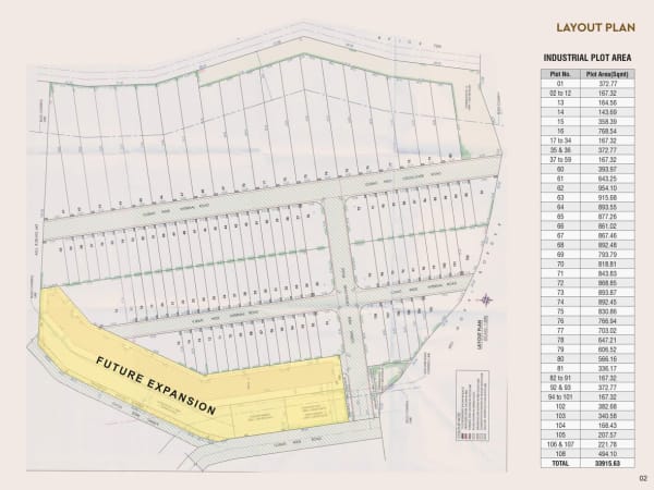
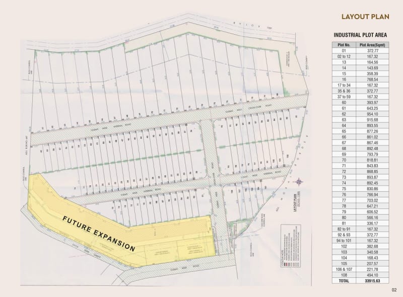
Vatar Industrial Park is a plotted development real estate project developed by Nikeshkumar Hirjibhai Balar, strategically located at C Sr. No. Na648, Na649, Na650, Na651, Na652, Na653, Na654, Na655, , Village- Vatar, Ta-vapi, Dist: Valsad., Valsad, 396191. This RERA-registered property (Registration No: PR/GJ/VALSAD/VAPI/Vapi Municipal Corporation/PAA16343/190126/311228). Open Ploting Project
The project is professionally designed by Nirali Pravinbhai Siddhapura and engineered by Niraj Bharatbhai Vekariya, ensuring quality construction and adherence to all regulatory standards. For more information about this property, interested buyers can contact Nikeshkumar Hirjibhai Balar directly at 7711885525.






